
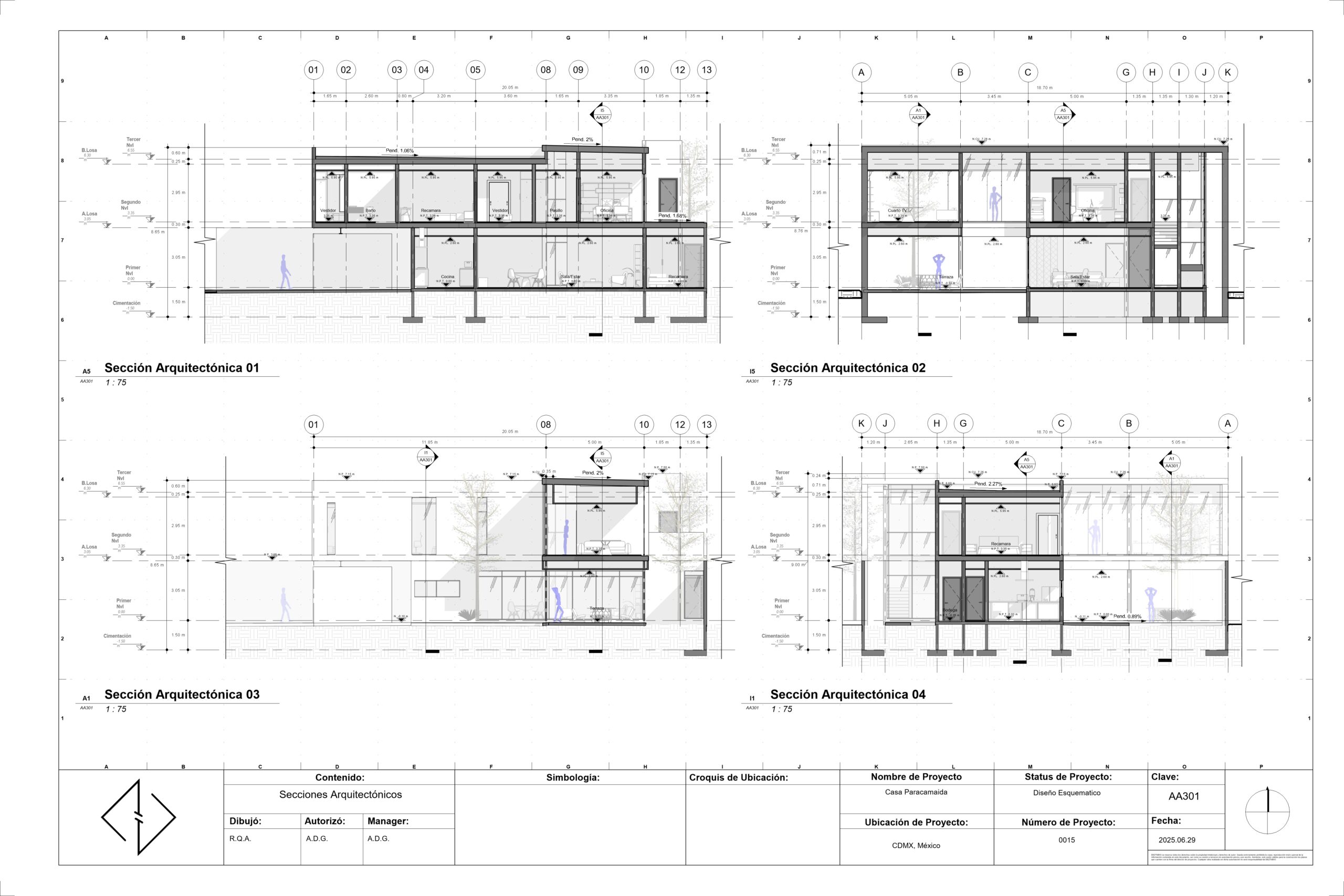
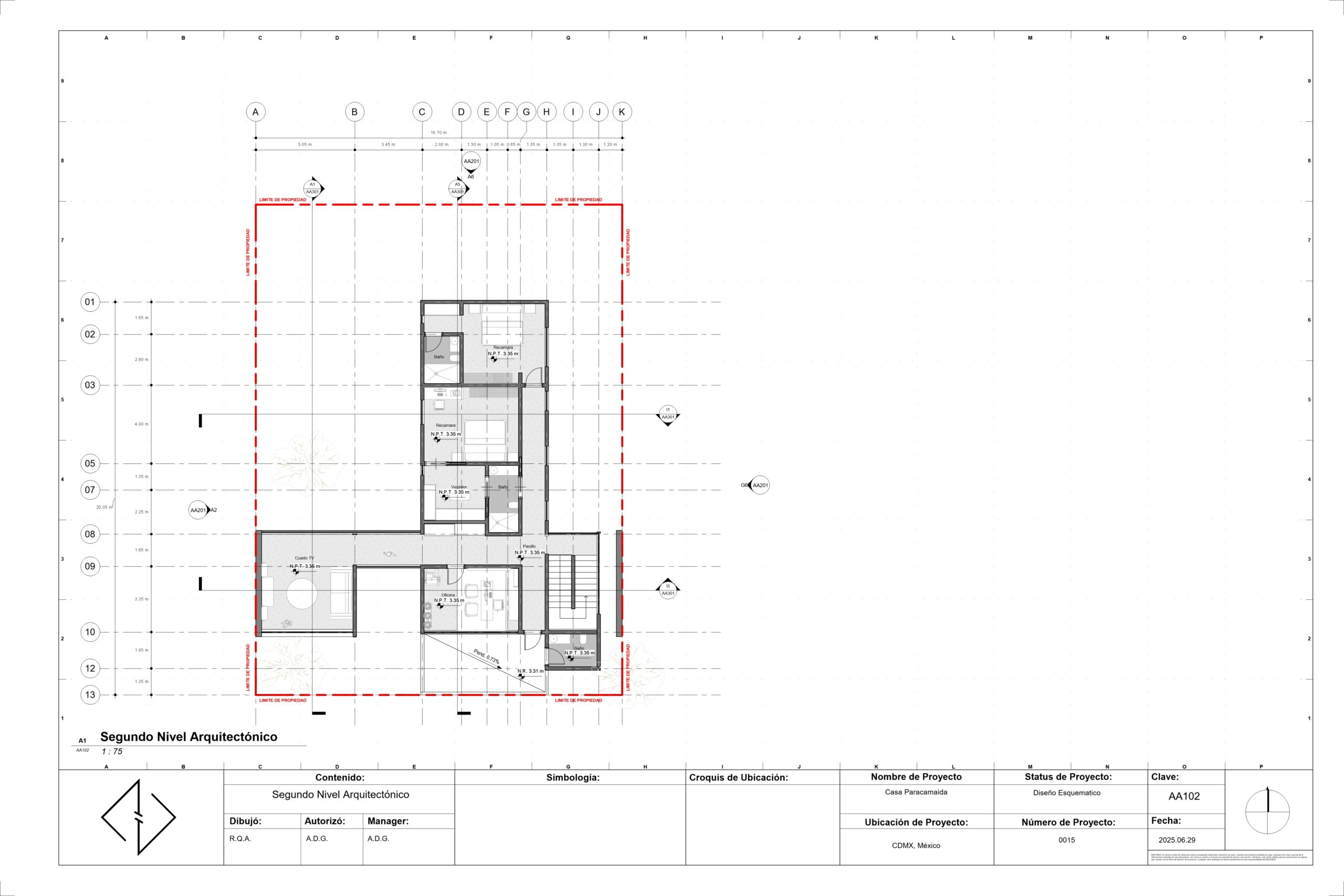
El diseño de “DCPP Arquitectos” se articula a través de una composición de volúmenes geométricos puros que se entrelazan para generar espacios y patios interiores, priorizando la privacidad y la introspección. La casa, de dos niveles, se caracteriza por un juego de sólidos y vacíos, donde un prominente volumen blanco de concreto o estuco alberga las áreas privadas en la planta alta, contrastando con grandes superficies acristaladas en la planta baja que disuelven los límites entre el interior y los patios. Este enfoque de diseño permite que la luz natural y la vegetación se conviertan en elementos centrales de los espacios de estar, creando un ambiente sereno y una conexión constante con la naturaleza dentro de un contexto urbano.
Casa Capacaraima
Habitacional
25 January,2024
3 meses
Grado Studio © 2026. Todos los derechos reservados.