
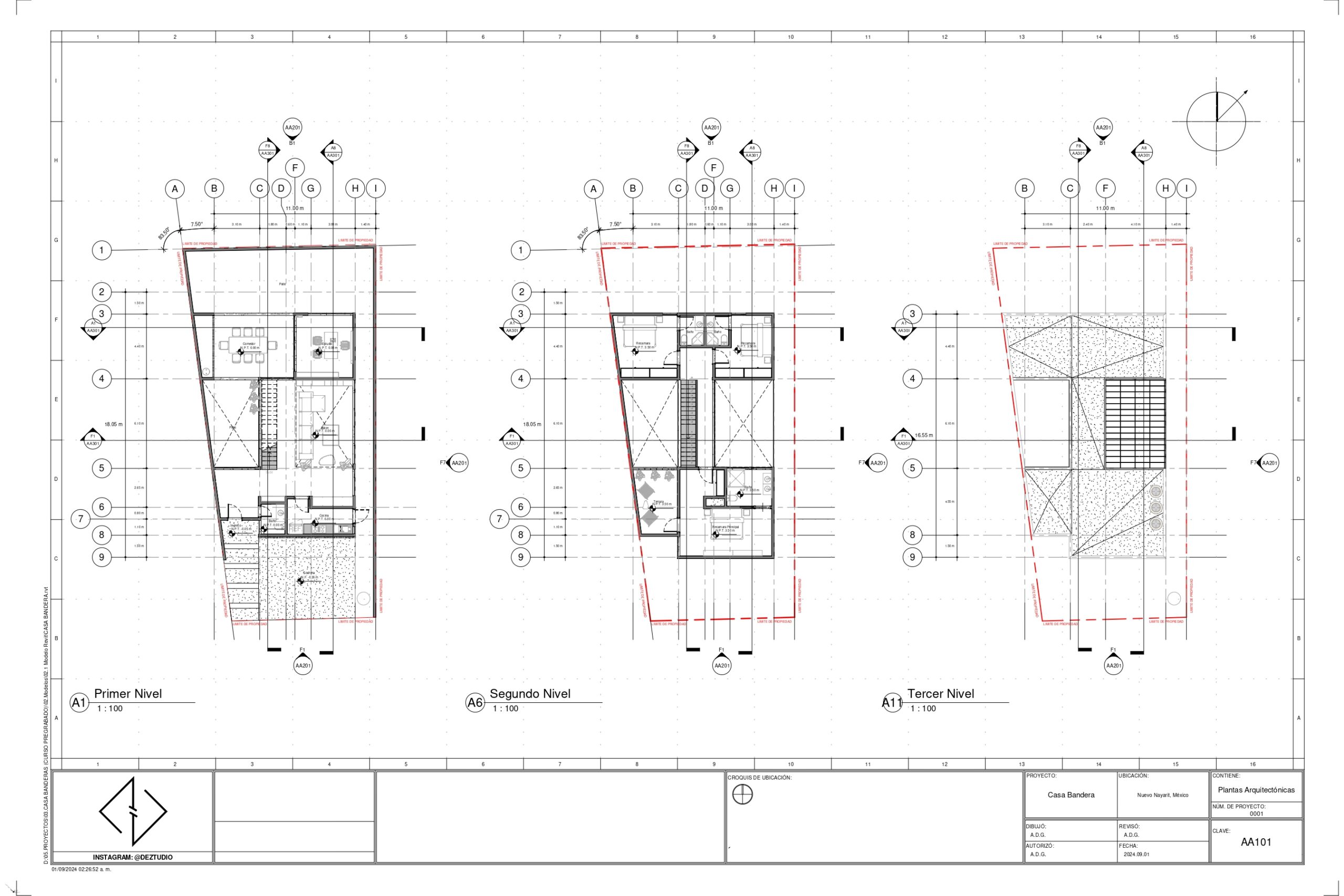
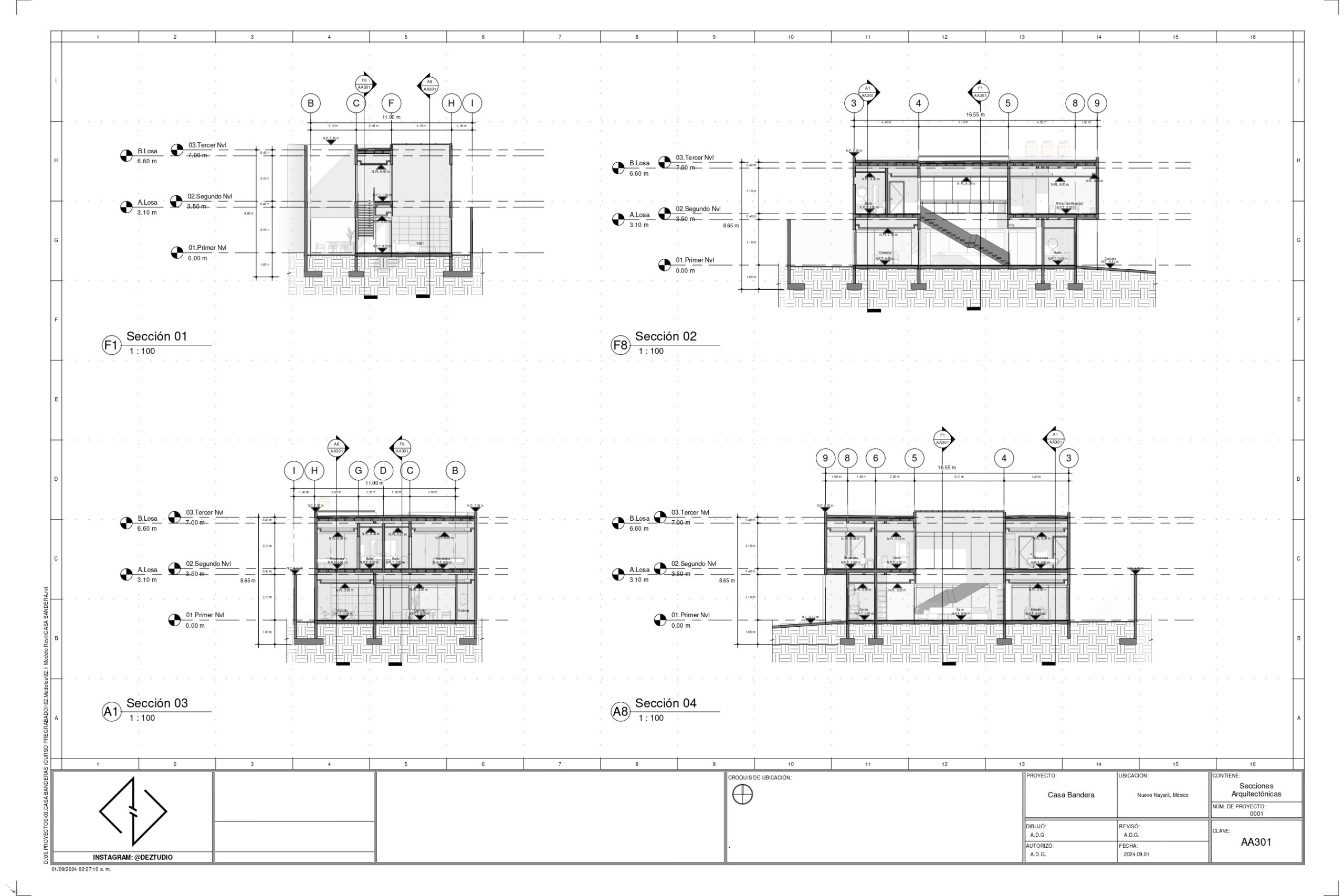
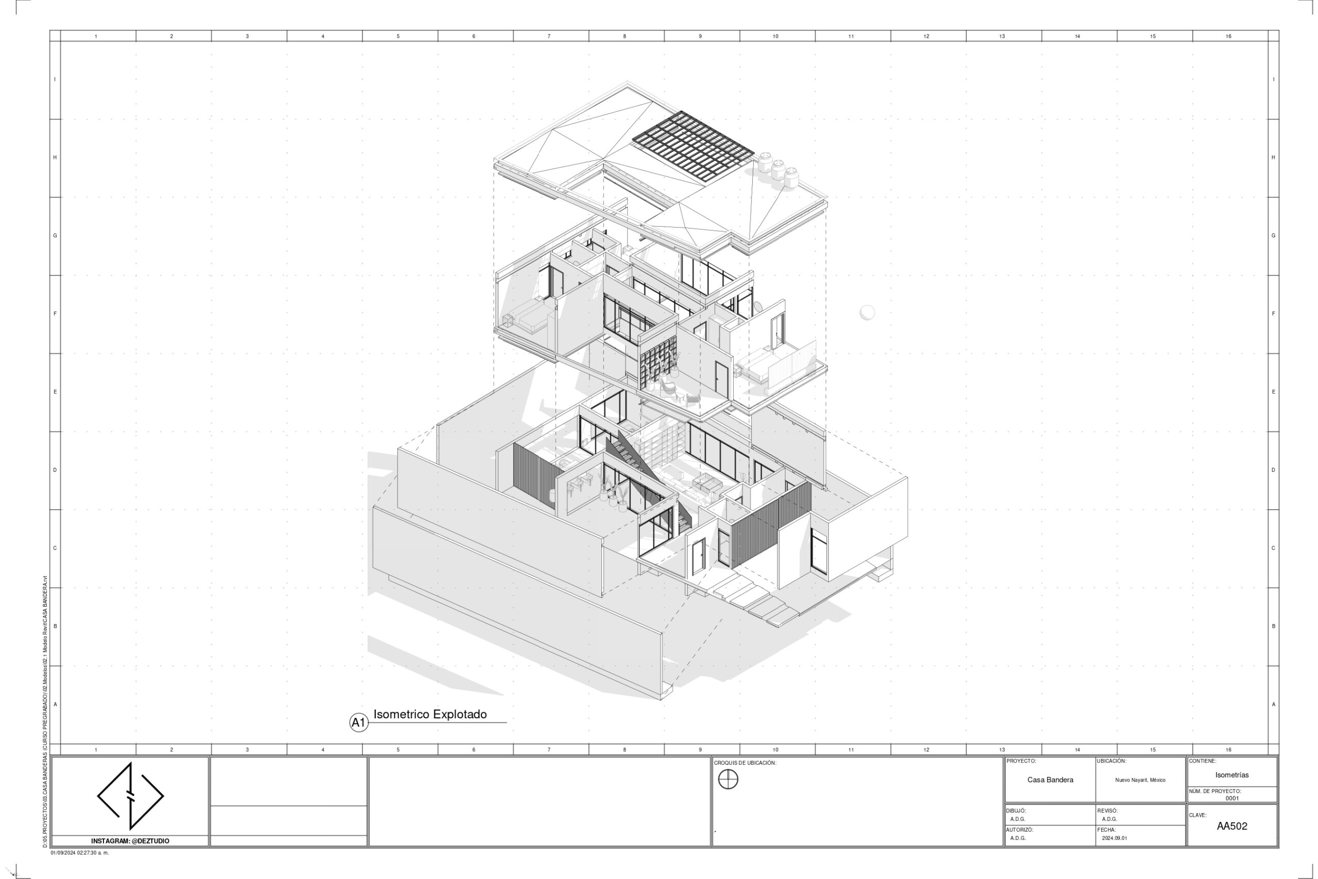
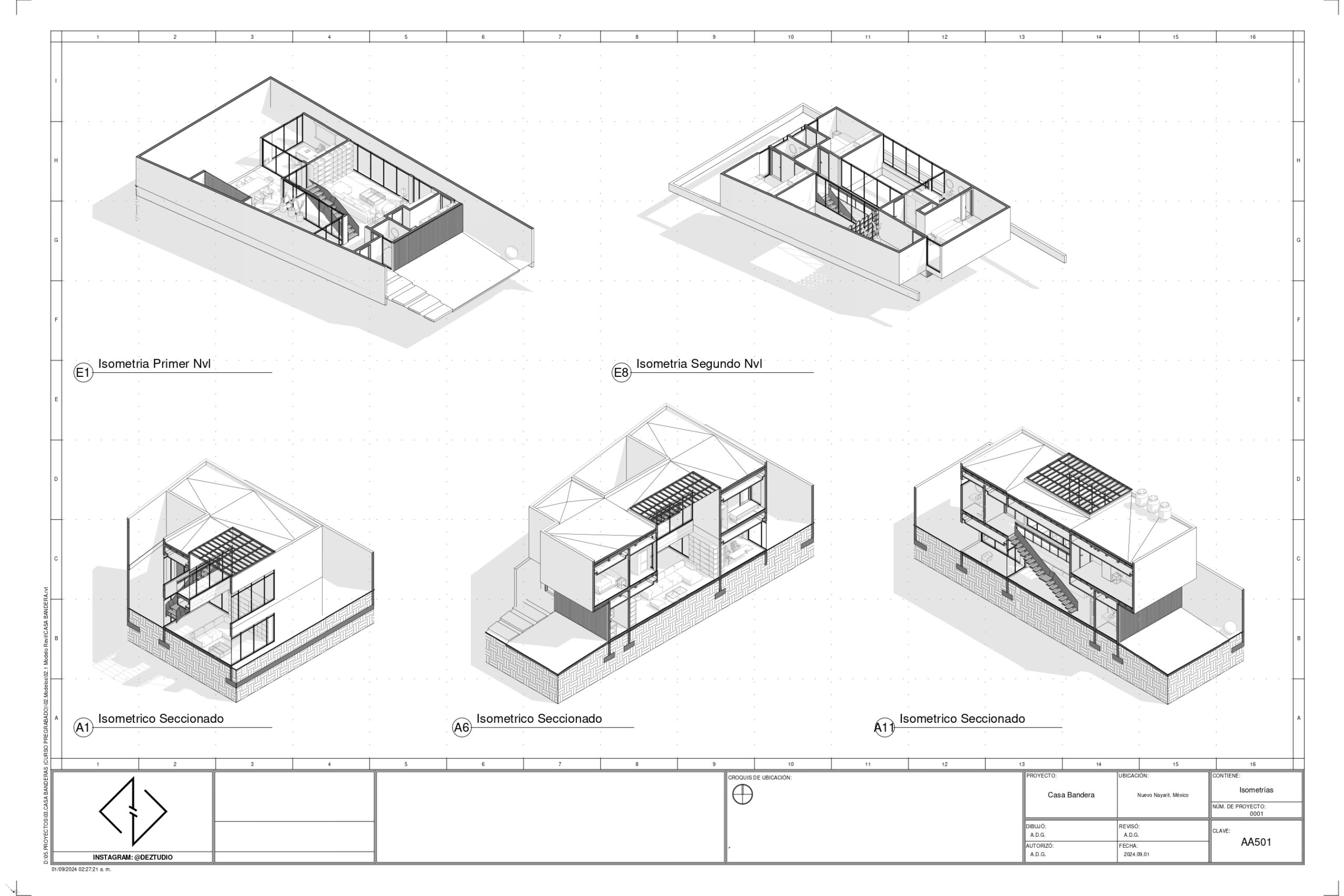
Casa Bandera, un proyecto residencial contemporáneo, se erige como una respuesta ingeniosa a las particularidades de un lote de forma irregular. La vivienda se desarrolla verticalmente en tres niveles más una cochera, presentando una fachada moderna y minimalista donde un volumen superior de tonalidad clara parece proyectarse sobre una base más oscura y texturizada, definiendo un carácter distintivo. El diseño interior se enfoca en maximizar el espacio funcional y la conexión con el exterior, con áreas sociales en el primer nivel que se abren hacia una terraza y jardín posterior, aprovechando la parte más ancha del terreno. Los niveles superiores albergan las zonas privadas, que ofrece un espacio adicional de esparcimiento y vistas. Casa Bandera integra soluciones como paneles solares, reflejando una sensibilidad hacia la eficiencia y el diseño contemporáneo para la vida familiar.
Casa Bandera
Habitacional
25 January,2024
3 meses
Grado Studio © 2026. Todos los derechos reservados.